| Nominal diameter (DN, mm): | 50, 65, 80, 100, 125, 150, 200, 250, 300, 350, 400, 500, 600, 700, 800, 900, 1000, 1200. |
| Nominal pressure (Pwork, PN): | 25 bar |
| Working environment temperature: | up to +150°C |
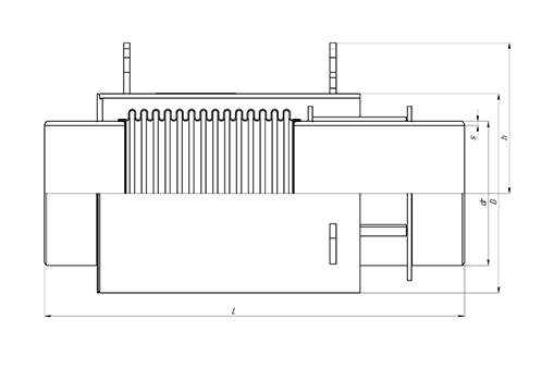
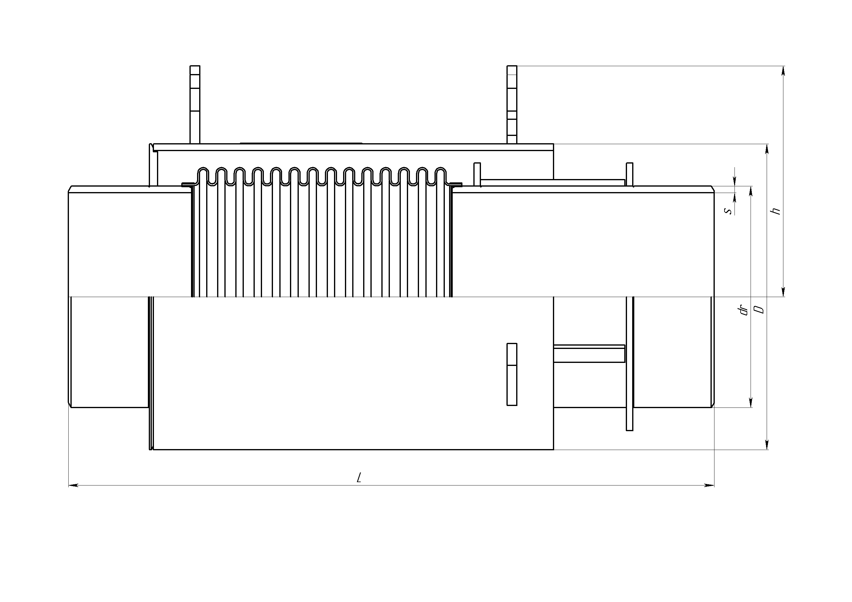
Bellows compensating device.
The bellows expansion device is equipped with a multilayer stainless steel bellows, welded ends and a protective cover, guides to prevent torsional rotation and a washer for additional installation of the pre-stretching mechanism. The product is equipped with lifting and pre-stretching eyelets.
Specifications are shown in Table 1.

table 1
| Callout | Nominal diameter | Nominal pressure | Dimensions | Axial compensating ability | Estimated weight | Calculated stiffness | Estimated effective area | |||||
|---|---|---|---|---|---|---|---|---|---|---|---|---|
| DN | РN | dr | s | D | h | L | Δ | ±λ | Сλ | Sэф | ||
|
мм mm |
Бар bar |
мм mm |
мм mm |
мм mm |
мм mm |
мм mm |
мм mm |
мм mm |
кг kg |
Н/мм N/mm |
см2 cm2 |
|
| СКУ 50-25-70 | 50 | 25 | 57 | 3,5 | 159 | 122,5 | 748 | 70 | 35 | 16 | 360,85 | 60,67 |
| СКУ 65-25-70 | 65 | 25 | 76 | 4,0 | 159 | 122,5 | 593 | 70 | 35 | 13 | 360,85 | 60,67 |
| СКУ 80-25-70 | 80 | 25 | 89 | 4,0 | 159 | 125 | 589 | 70 | 35 | 15 | 302,93 | 83,47 |
| СКУ 100-25-100 | 100 | 25 | 108 | 4,0 | 185 | 135 | 666 | 100 | 50 | 18 | 268,62 | 118,05 |
| СКУ 125-25-100 | 125 | 25 | 133 | 5,0 | 219 | 150 | 678 | 100 | 50 | 27 | 373,07 | 155,04 |
| СКУ 150-25-100 | 150 | 25 | 159 | 5,0 | 245 | 217,5 | 685 | 100 | 50 | 40 | 368,67 | 238,06 |
| СКУ 200-25-160 | 200 | 25 | 219 | 8,0 | 325 | 260 | 829 | 160 | 80 | 75 | 458,95 | 459,16 |
| СКУ 250-25-160 | 250 | 25 | 273 | 8,0 | 377 | 285 | 796 | 160 | 80 | 86 | 447,84 | 686,23 |
| СКУ 300-25-180 | 300 | 25 | 325 | 8,0 | 426 | 310 | 880 | 180 | 90 | 112 | 536,12 | 963,16 |
| СКУ 400-25-190 | 400 | 25 | 426 | 9,0 | 550 | 375 | 941 | 190 | 95 | 169 | 846,57 | 1630,98 |
| СКУ 500-25-200 | 500 | 25 | 530 | 8,0 | 630 | 422,5 | 959 | 200 | 100 | 197 | 1032,36 | 2468,29 |
| СКУ 600-25-200 | 600 | 25 | 630 | 10,0 | 765 | 475 | 927 | 200 | 100 | 294 | 1266,25 | 3425,34 |
| СКУ 700-25-210 | 700 | 25 | 720 | 10,0 | 855 | 520 | 920 | 210 | 105 | 322 | 1494,54 | 4488,83 |
| СКУ 800-25-210 | 800 | 25 | 820 | 12,0 | 960 | 572,5 | 991 | 210 | 105 | 422 | 1439,95 | 5780,47 |
| СКУ 900-25-210 | 900 | 25 | 920 | 14,0 | 1065 | 627,5 | 946 | 210 | 105 | 490 | 1727,42 | 7241,25 |
| СКУ 1000-25-220 | 1000 | 25 | 1020 | 14,0 | 1160 | 680 | 945 | 220 | 110 | 540 | 2083,7 | 8841,39 |
| СКУ 1200-25-220 | 1200 | 25 | 1220 | 16,0 | 1370 | 785 | 958 | 220 | 110 | 720 | 2900,45 | 12522,48 |
ПNote:
1. Variants with other technical parameters are possible.
2. The product can be completed with a pre-stretching mechanism in the amount of 1 piece.
3. The estimated weight of the expansion joint may differ from the actual weight.
4. The appearance of the structure may vary.
We will tell you in detail about our services, types of work and typical projects, calculate the cost and prepare an individual offer!