2СКУ.ППУ-ТПЭ
| Диаметр условный ( Ду , мм): | 50, 65, 80, 100, 125, 150, 200, 250, 300, 350, 400, 500, 600, 700, 800, 900, 1000, 1200. |
| Давление условное ( Рраб, PN): | 25 Бар |
| Температура рабочей среды: | до +150°С |
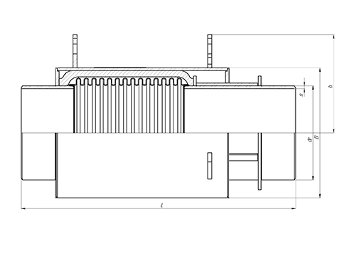
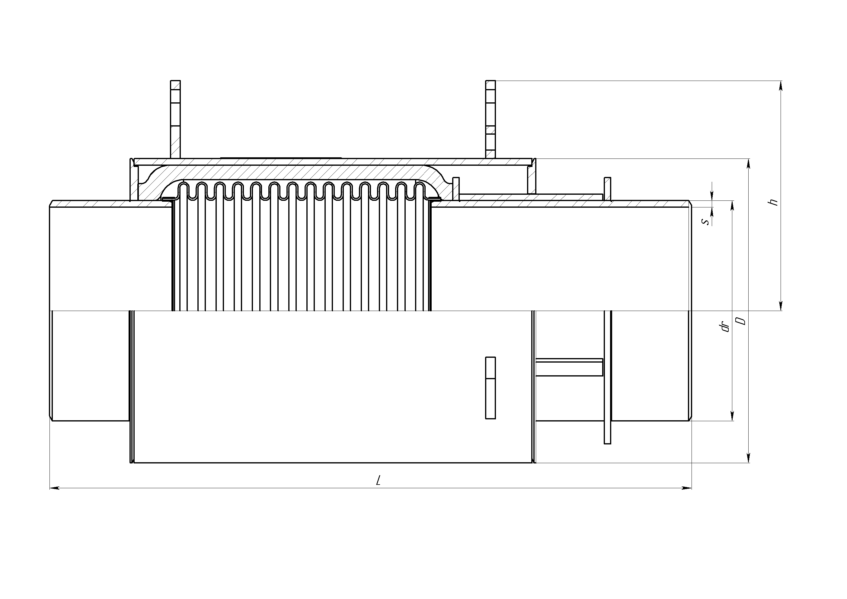
Сильфонное компенсирующее устройство с теплоизоляцией сильфона.
Сильфонное компенсирующее устройство с теплоизоляцией сильфона снабжено теплоизолированным многослойным сильфоном из нержавеющей стали, патрубками под приварку и защитным кожухом, направляющими для предотвращения торсионных вращений и шайбой для дополнительной установки механизма предварительного растяжения. В изделии предусмотрены проушины для подъема и предварительного растяжения.
Технические характеристики указаны в таблице 1.

Таблица 1
| Условное обозначение | Номинальный диаметр | Номинальное давление | Размеры | Осевая компенсирующая способность | Расчетный вес | Расчетная жёсткость | Расчетная эффективная площадь | |||||
|---|---|---|---|---|---|---|---|---|---|---|---|---|
| DN | РN | dr | s | D | h | L | Δ | ±λ | Сλ | Sэф | ||
|
мм mm |
Бар bar |
мм mm |
мм mm |
мм mm |
мм mm |
мм mm |
мм mm |
мм mm |
кг kg |
Н/мм N/mm |
см2 cm2 |
|
| СКУ.М 50-25-70 | 50 | 25 | 57 | 3,5 | 159 | 122,5 | 748 | 70 | 35 | 16 | 360,85 | 60,67 |
| СКУ.М 65-25-70 | 65 | 25 | 76 | 4,0 | 159 | 122,5 | 593 | 70 | 35 | 13 | 360,85 | 60,67 |
| СКУ.М 80-25-70 | 80 | 25 | 89 | 4,0 | 159 | 125 | 589 | 70 | 35 | 15 | 302,93 | 83,47 |
| СКУ.М 100-25-100 | 100 | 25 | 108 | 4,0 | 185 | 135 | 666 | 100 | 50 | 18 | 268,62 | 118,05 |
| СКУ.М 125-25-100 | 125 | 25 | 133 | 5,0 | 219 | 150 | 678 | 100 | 50 | 27 | 373,07 | 155,04 |
| СКУ.М 150-25-100 | 150 | 25 | 159 | 5,0 | 245 | 217,5 | 685 | 100 | 50 | 40 | 368,67 | 238,06 |
| СКУ.М 200-25-160 | 200 | 25 | 219 | 8,0 | 325 | 260 | 829 | 160 | 80 | 75 | 458,95 | 459,16 |
| СКУ.М 250-25-160 | 250 | 25 | 273 | 8,0 | 377 | 285 | 796 | 160 | 80 | 86 | 447,84 | 686,23 |
| СКУ.М 300-25-180 | 300 | 25 | 325 | 8,0 | 426 | 310 | 880 | 180 | 90 | 112 | 536,12 | 963,16 |
| СКУ.М 400-25-190 | 400 | 25 | 426 | 9,0 | 550 | 375 | 941 | 190 | 95 | 169 | 846,57 | 1630,98 |
| СКУ.М 500-25-200 | 500 | 25 | 530 | 8,0 | 630 | 422,5 | 959 | 200 | 100 | 197 | 1032,36 | 2468,29 |
| СКУ.М 600-25-200 | 600 | 25 | 630 | 10,0 | 765 | 475 | 927 | 200 | 100 | 294 | 1266,25 | 3425,34 |
| СКУ.М 700-25-210 | 700 | 25 | 720 | 10,0 | 855 | 520 | 920 | 210 | 105 | 322 | 1494,54 | 4488,83 |
| СКУ.М 800-25-210 | 800 | 25 | 820 | 12,0 | 960 | 572,5 | 991 | 210 | 105 | 422 | 1439,95 | 5780,47 |
| СКУ.М 900-25-210 | 900 | 25 | 920 | 14,0 | 1065 | 627,5 | 946 | 210 | 105 | 490 | 1727,42 | 7241,25 |
| СКУ.М 1000-25-220 | 1000 | 25 | 1020 | 14,0 | 1160 | 680 | 945 | 220 | 110 | 540 | 2083,7 | 8841,39 |
| СКУ.М 1200-25-220 | 1200 | 25 | 1220 | 16,0 | 1370 | 785 | 958 | 220 | 110 | 720 | 2900,45 | 12522,48 |
Примечание:
1. Возможны варианты с другими техническими параметрами.
2. Изделие может комплектоваться механизмом предварительного растяжения в количестве 1шт.
3. Расчетный вес компенсатора может отличаться от фактического.
4. Внешний вид конструкции может отличаться.
Нужна консультация?
Подробно расскажем о наших услугах, видах работ и типовых проектах, рассчитаем стоимость и подготовим индивидуальное предложение!