2СКУ.ППУ
| Диаметр условный ( Ду , мм): | 50, 65, 80, 100, 125, 150, 200, 250, 300, 350, 400, 500, 600, 700, 800, 900, 1000 |
| Давление условное ( Рраб, PN): | 25 Бар |
| Температура рабочей среды: | до +150°С |
Сильфонное компенсирующее устройство с тепло- и гидроизолированным сильфоном и гильзой в полиэтиленовой оболочке под ППУ изоляцию.
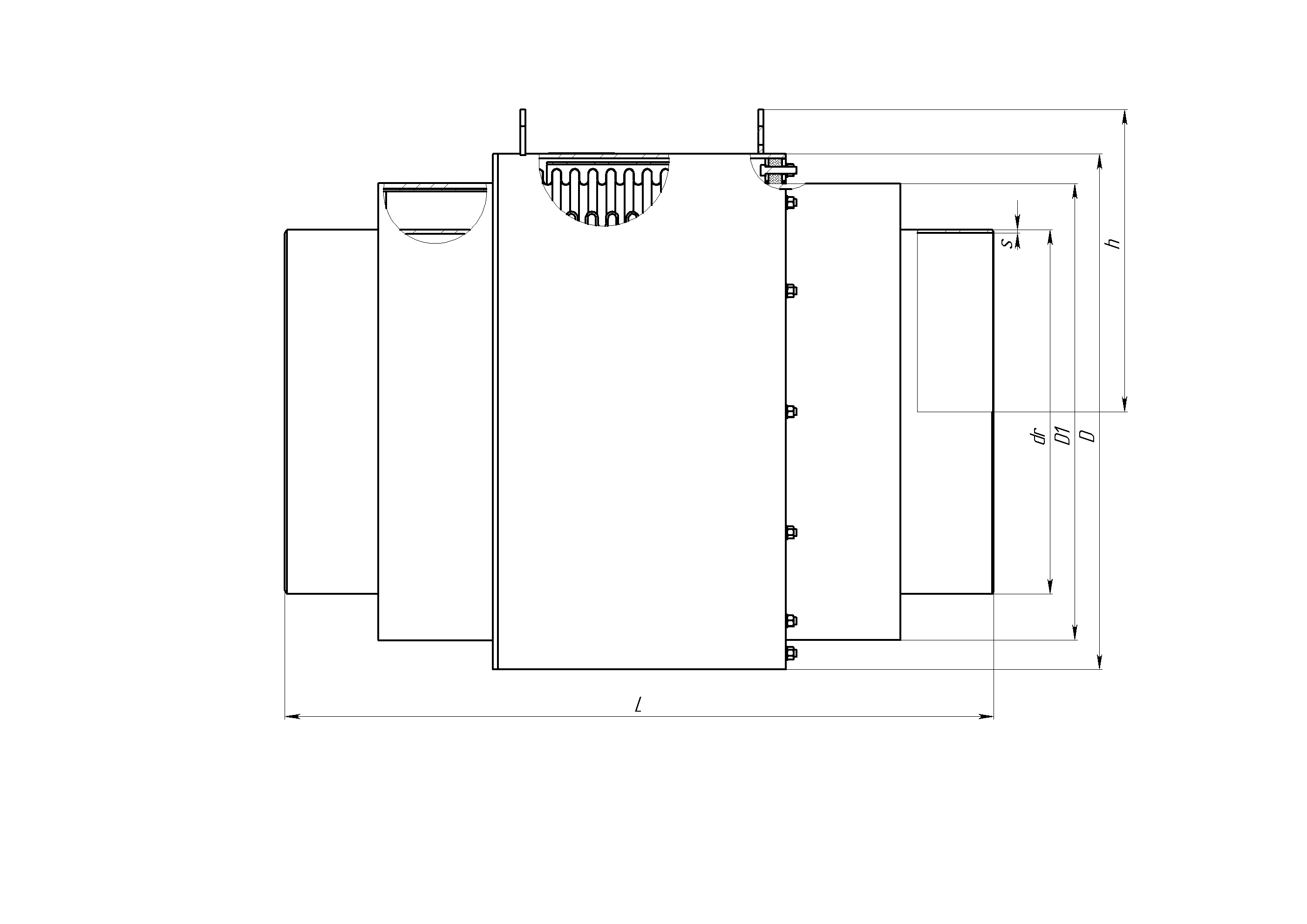
Сильфонное компенсирующее устройство с тепло- и гидроизолированным сильфоном и гильзой в полиэтиленовой оболочке под ППУ изоляцию снабжено тепло- и гидроизолированным многослойным сильфоном из нержавеющей стали, патрубками под приварку без заводской изоляции, гильзой в полиэтиленовой оболочке под ППУ изоляцию, сальниковой набивкой для гидроизоляции, защитным кожухом, направляющими для предотвращения торсионных вращений и шайбой для дополнительной установки механизма предварительного растяжения. В изделии предусмотрены проушины для подъема и предварительного растяжения. Возможно изготовление с дополнительной теплоизоляцией сильфона и проводниками СОДК.
Технические характеристики указаны в таблице 1.

table 1
| Callout | Nominal diameter | Nominal pressure | Dimensions | Axial compensating ability | Estimated weight | Calculated stiffness | Estimated effective area | |||||||
|---|---|---|---|---|---|---|---|---|---|---|---|---|---|---|
| DN | РN | dr | s | D | D1 | h | L | Δ | ±λ | Сλ | Sэф | |||
|
мм mm |
Бар bar |
мм mm |
мм mm |
мм mm |
мм mm |
мм mm |
мм mm |
мм mm |
мм mm |
кг kg |
Н/мм N/mm |
см2 cm2 |
||
| СКУ.ППУ 50-25-70 | 50 | 25 | 57 | 3,5 | 245 | 127 | 220 | 1199 | 70 | 35 | 52 | 493,38 | 60,67 | |
| СКУ.ППУ 65-25-70 | 65 | 25 | 76 | 4,0 | 245 | 142 | 220 | 1199 | 70 | 35 | 59 | 493,98 | 60,67 | |
| СКУ.ППУ 80-25-70 | 80 | 25 | 89 | 4,0 | 245 | 164 | 220 | 1209 | 70 | 35 | 63 | 436,06 | 83,47 | |
| СКУ.ППУ 100-25-100 | 100 | 25 | 108 | 4,0 | 299 | 182 | 250 | 1220 | 100 | 50 | 85 | 494,67 | 118,05 | |
| СКУ.ППУ 125-25-100 | 125 | 25 | 133 | 5,0 | 299 | 227 | 250 | 1242 | 100 | 50 | 96 | 599,12 | 155,04 | |
| СКУ.ППУ 150-25-100 | 150 | 25 | 159 | 5,0 | 377 | 252 | 288,5 | 1256 | 100 | 50 | 126 | 562,83 | 238,06 | |
| СКУ.ППУ 200-25-160 | 200 | 25 | 219 | 8,0 | 426 | 317 | 312,5 | 1482 | 160 | 80 | 218 | 678,03 | 459,16 | |
| СКУ.ППУ 250-25-160 | 250 | 25 | 273 | 8,0 | 480 | 402 | 340 | 1711 | 160 | 80 | 272 | 675,61 | 686,23 | |
| СКУ.ППУ 300-25-180 | 300 | 25 | 325 | 8,0 | 530 | 452 | 365 | 1732 | 180 | 90 | 331 | 818,86 | 963,16 | |
| СКУ.ППУ 400-25-190 | 400 | 25 | 426 | 9,0 | 650 | 562 | 425 | 1808 | 190 | 95 | 491 | 1163,59 | 1630,98 | |
| СКУ.ППУ 500-25-200 | 500 | 25 | 530 | 8,0 | 820 | 712 | 510 | 1842 | 200 | 100 | 596 | 1335,56 | 2468,29 | |
| СКУ.ППУ 600-25-200 | 600 | 25 | 630 | 10,0 | 950 | 802 | 575 | 1863 | 200 | 100 | 985 | 1632,91 | 3425,34 | |
| СКУ.ППУ 700-25-210 | 700 | 25 | 720 | 10,0 | 1060 | 902 | 630 | 1904 | 210 | 105 | 1135 | 1812,19 | 4488,83 | |
| СКУ.ППУ 800-25-210 | 800 | 25 | 820 | 12,0 | 1160 | 1002 | 680 | 1913 | 210 | 105 | 1362 | 1914,61 | 5780,47 | |
| СКУ.ППУ 1000-25-220 | 1000 | 25 | 1020 | 14,0 | 1360 | 1202 | 780 | 1942 | 220 | 110 | 1775 | 2591,27 | 8841,39 | |
Note:
1. Additional thermal insulation of the bellows is possible.
2. Variants with other technical parameters are possible.
3. The product can be completed with a pre-stretching mechanism in the amount of 1 piece.
4. The estimated weight of the expansion joint may differ from the actual weight.
5. Additional installation of SODK (operational remote control system) is possible.
6. It is possible to manufacture type 1 and type 2 thermal insulation (according to GOST 30732).
7. It is possible to manufacture an expansion joint in a galvanized sheath (when manufacturing an expansion joint in a galvanized sheath, the product will not have lifting and pre-stretching eyes).
8. The appearance of the structure may vary.
Нужна консультация?
Подробно расскажем о наших услугах, видах работ и типовых проектах, рассчитаем стоимость и подготовим индивидуальное предложение!